CERRADURA TLB 5 PUNTOS SEGURIDAD CROMO MATE.. 20mm
REFERENCIA TLB5566LC
108,08 €
Impuestos incluidos
¡Descuento ya aplicado en el precio final!
Cerradura de Seguridad Modelo TLB de 5 puntos. Acabada en cromo mate. Marca Tesa.
CERRADURA TLB 5 PUNTOS CROMO MATE
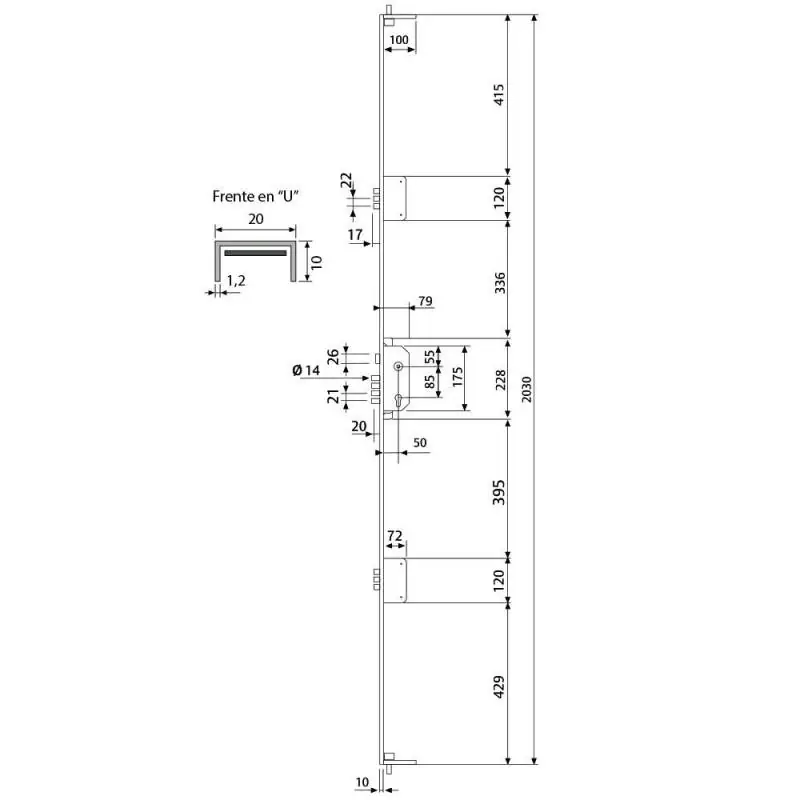
Cerradura de seguridad TESA multipunto serie TLB con 5 puntos de cierre para embutir y es una de las cerraduras más empleadas en puertas de entrada de madera. ¡Compra esta cerradura para mayor seguridad en tu casa en nuestra web al mejor precio!
Características del artículo
Bulones redondos de cromo mate de Ø14mm en la caja principal.
Mecanismos protegidos en cajas cerradas de acero galvanizado.
Puntos de cierre alto y bajo (acero carbonitrurado).
Cerradero alto de acero y cerradero de suelo con guardapolvos.
Frente de acero de perfil en U de elevada rigidez, idóneo para puertas resistentes al fuego.
Mecanismo en los reenvíos con sistema anti-retorno.
Cerraderos largos de ancho 45mm.
Altura estándar de 2.028mm.
Distancia de entrada 50mm.
Distancia entre ejes 85mm.
Frente de la cerradura estándar de 20x10 mm.
Incluye escudo de seguridad E700L.
Incluye cilindro euro perfil T60 de 30x30 mm con 5 llaves de acero niquelado.
Medidas del producto
Alto (mm) | Ancho (mm) |
2028 | 20 |
Cantidad
👇Síguenos👇